金水華禹聯系方式
     聯系我們  
  
  
  HY.LSZ-1明渠流量計
          
          
          時間:2024-01-16 16:09:24瀏覽量:1001
            HY.LSZ-1明渠流量計(時差法)測流系統HY.LSZ-1時差式流速流量測流系統設備是用于測量非滿管、開口排放的渠道液體流量的儀表。可廣泛應用于化工、電力、冶金、礦山、水利等行業。生產和檢定標準依據《速度式流量計》檢定規程JJG198-1...
          詳細介紹
          HY.LSZ-1明渠流量計(時差法)測流系統
HY.LSZ-1時差式流速流量測流系統設備是用于測量非滿管、開口排放的渠道液體流量的儀表。可廣泛應用于化工、電力、冶金、礦山、水利等行業。生產和檢定標準依據《速度式流量計》檢定規程JJG198-1994。
1. 應 用
城市供水引水渠
污水治理流入和排放渠
工礦企業化工液體、廢水排放渠道
水利工程和農業灌溉用渠道
泄洪閘門流量測量
2.特 點
對渠道的截面形狀、尺寸無要求。
可以不停水安裝、維護。
不阻流,無水頭損失。
渠道的截面較大時采用多聲道測速,實現高精度測量。
可測量正、反兩個方向的流量和流速。
測量范圍大,準確度高。
可用于槽堰式或其他方式明渠流量計的標定設備。
3.測量原理
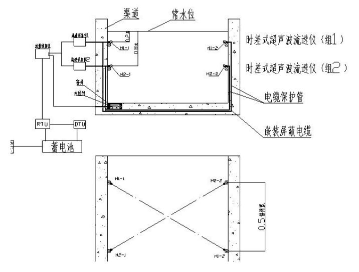
采用時差式超聲波測量原理(超聲波在液體流動方向和相反方向的傳播而引起的速度差),在測流斷面分布二層流速測量層,在渠底安裝壓力式水位計測量水位,計算過水斷面面積,根據水力學模型,計算出過水斷面流量。
4.測流系統示意圖

5.現場設備圖

三通道傳感器 安裝

 上一篇:HY.LDZ-1明渠雷達流量計
               下一篇:HY-DCB電磁流速儀
          
 
    

